

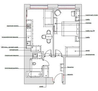
Этот проект двухкомнатной квартиры в стиле контемпорари получился по-настоящему уютным и гармоничным. Светлая палитра в отделке зрительно расширяет пространство, наполняя его светом и ощущением легкости. Чистые линии и формы, характерные для данного стиля, выразительно проявляются в геометрии потолков и стен, дизайне мебели и лаконичных декоративных элементах.
Этот проект двухкомнатной квартиры в стиле контемпорари получился по-настоящему уютным и гармоничным. Светлая палитра в отделке зрительно расширяет пространство, наполняя его светом и ощущением легкости. Чистые линии и формы, характерные для данного стиля, выразительно проявляются в геометрии потолков и стен, дизайне мебели и лаконичных декоративных элементах.
