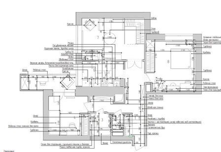
Интерьер этой двухкомнатной квартиры выполнен в современном стиле лофт. Красивые текстуры, современные индустриальные светильники и элементы декора придают помещению дух фабричного пространства. В интерьере преобладают характерные для лофтовой стилистики цвета, такие как серый и цвет натурального дерева. Пространство квартиры функционально и четко соответствует выбранной концепции.
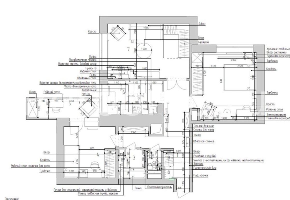
Интерьер этой двухкомнатной квартиры выполнен в современном стиле лофт. Красивые текстуры, современные индустриальные светильники и элементы декора придают помещению дух фабричного пространства. В интерьере преобладают характерные для лофтовой стилистики цвета, такие как серый и цвет натурального дерева. Пространство квартиры функционально и четко соответствует выбранной концепции.
