

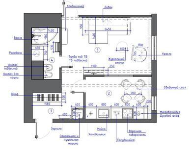
Дизайн-проект однокомнатной квартиры выполнен в стиле модернизм. Четкая геометрия пространства, обилие разнообразных текстур, современные элементы декора смотрятся необычайно гармонично и целостно. Разноплановое освещение придает пространству индивидуальный характер, а контрастная цветовая гамма делает его стильным и уникальным.
Дизайн-проект однокомнатной квартиры выполнен в стиле модернизм. Четкая геометрия пространства, обилие разнообразных текстур, современные элементы декора смотрятся необычайно гармонично и целостно. Разноплановое освещение придает пространству индивидуальный характер, а контрастная цветовая гамма делает его стильным и уникальным.
