

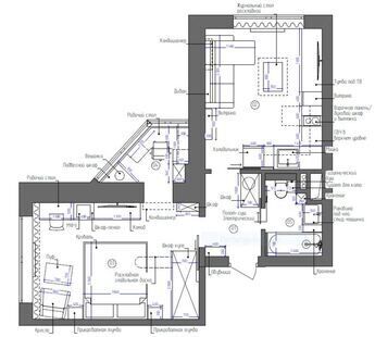
Проект этой двухкомнатной квартиры в стиле контемпорари — воплощение сдержанности и элегантности. Легкие, нейтральные оттенки в интерьере создают ощущение простора, а натуральные материалы в отделке и декоре наполняют помещение уютом и теплотой.
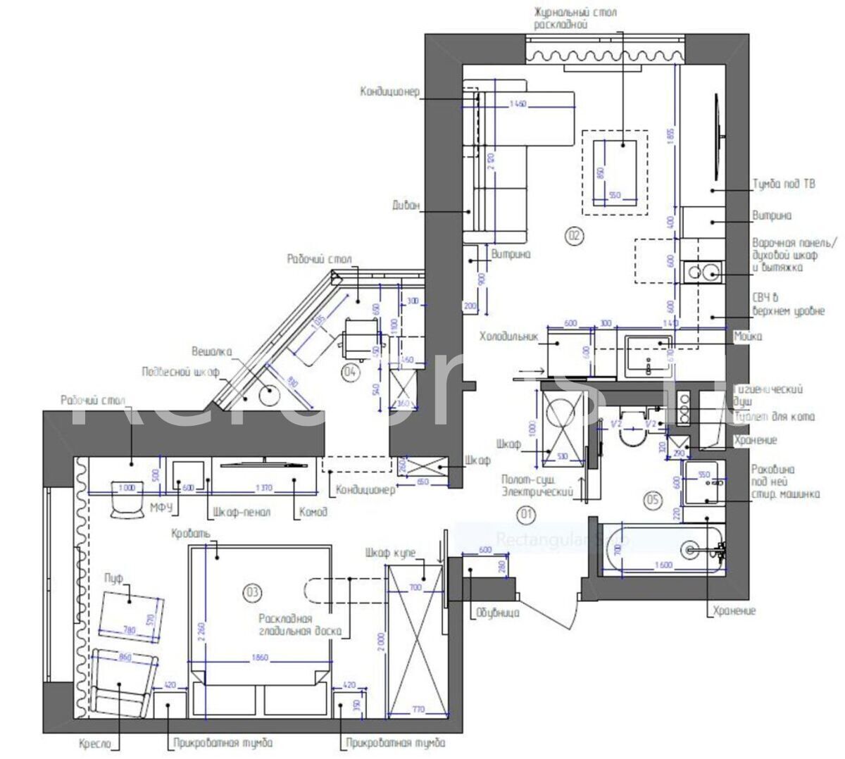
Проект этой двухкомнатной квартиры в стиле контемпорари — воплощение сдержанности и элегантности. Легкие, нейтральные оттенки в интерьере создают ощущение простора, а натуральные материалы в отделке и декоре наполняют помещение уютом и теплотой.
