

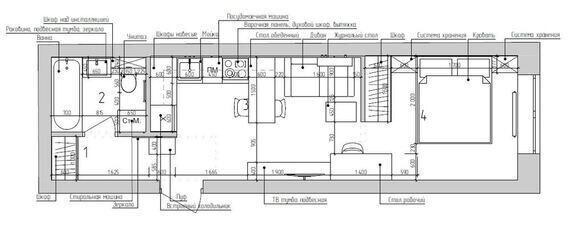
Дизайн-проект этой квартиры-студии выполнен в стиле лофт. Интерьер выдержан с соблюдением всех правил лофтовой стилистики. Деревянные фактуры, покрытие под бетон, фабричные светильники, характерная цветовая гамма - все это придает пространству ультрасовременный вид. Разноплановая отделка и декор позволяют визуально поделить квартиру на несколько функциональных зон.
Дизайн-проект этой квартиры-студии выполнен в стиле лофт. Интерьер выдержан с соблюдением всех правил лофтовой стилистики. Деревянные фактуры, покрытие под бетон, фабричные светильники, характерная цветовая гамма - все это придает пространству ультрасовременный вид. Разноплановая отделка и декор позволяют визуально поделить квартиру на несколько функциональных зон.
