

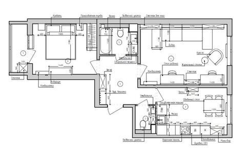
Интерьер этой квартиры выполнен в стиле лофт. Брутальные текстуры, современные индустриальные светильники, а также элементы декора, присущие данному стилю, придают помещению дух фабричного пространства. В интерьере преобладают характерные для лофтовой стилистики цвета, такие как серый, графитовый, черный, а в дополнение к ним подобран цвет натуральной древесины. Пространство квартиры функционально и четко соответствует выбранной концепции.
Интерьер этой квартиры выполнен в стиле лофт. Брутальные текстуры, современные индустриальные светильники, а также элементы декора, присущие данному стилю, придают помещению дух фабричного пространства. В интерьере преобладают характерные для лофтовой стилистики цвета, такие как серый, графитовый, черный, а в дополнение к ним подобран цвет натуральной древесины. Пространство квартиры функционально и четко соответствует выбранной концепции.
