

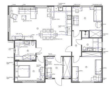
Интерьер этого частного дома выдержан в стиле лофт. Грубые поверхности под кирпич, дерево и камень, современные индустриальные светильники, трековые системы, а также металлические элементы декора придают помещению брутальный дух индустриального пространства. В интерьере преобладают характерные для лофтовой стилистики цвета, такие как серый, черный, графитовый, терракотовый. Для проекта дизайнеры подобрали минималистичный декор, удачно подчеркнувший выбранную концепцию жилого пространства.
Интерьер этого частного дома выдержан в стиле лофт. Грубые поверхности под кирпич, дерево и камень, современные индустриальные светильники, трековые системы, а также металлические элементы декора придают помещению брутальный дух индустриального пространства. В интерьере преобладают характерные для лофтовой стилистики цвета, такие как серый, черный, графитовый, терракотовый. Для проекта дизайнеры подобрали минималистичный декор, удачно подчеркнувший выбранную концепцию жилого пространства.
